Prosjektet
Beliggenhet
Boligvelger
Galleri
Dokumenter
Meld interesse
H2
Meld interesse
Kjøp
Status
Ledig
Totalpris
4 273 970
Pris
4 250 000
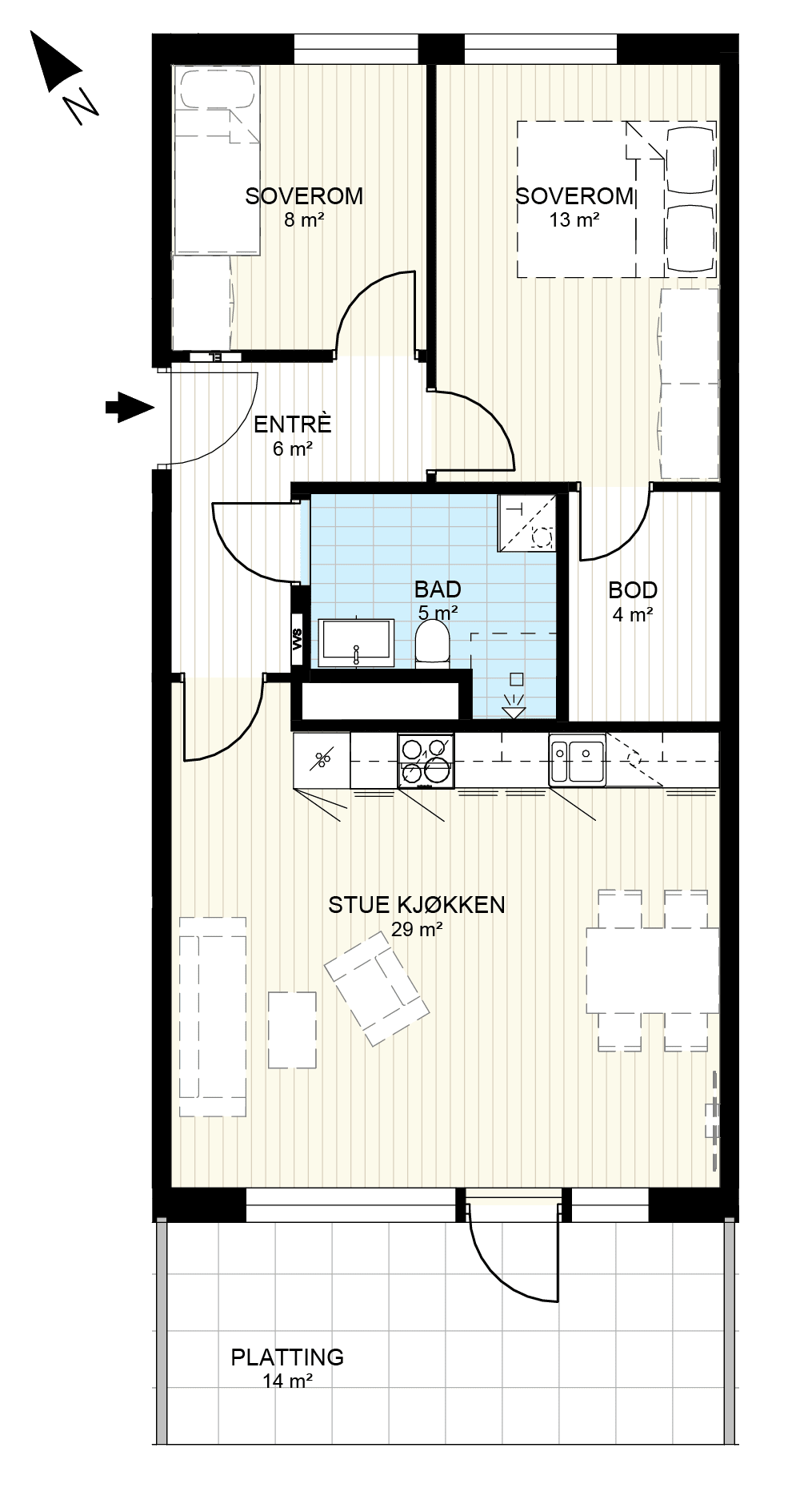
Balkong m²
14
Soverom
2
BRA
69
BRA-i
69
Etasje
1
Parkeringsplass
0
Omkostninger
23 970
Vedlegg
Meld interesse for enheten
Fyll inn navn
Fyll inn telefonnummer
Fyll inn e-post
Jeg ønsker å bli kontaktet i samtykke med denne
personvernerklæringen
Send
Powered by Plyo
Tilbake til Bygg H